WORK
ABOUT ME
CONTACT
WORK
ABOUT ME
CONTACT
Tom Winbomont
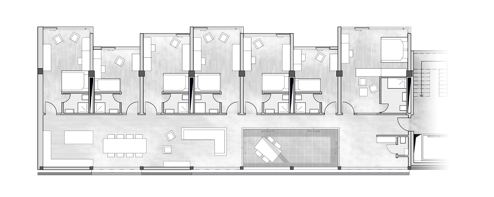
STUDENT RESIDENCE
STUDENT RESIDENCE
transformation of a 1970s residential building into a student residence with 126 rooms
supplementar facilities like a gym, a bakery, a café and a workshop
You may also like
SCHENGEN MARINA PARK
2022
BISPHORIC MUSEUM
2021
TRI-BORDER VISITOR PAVILLON
2020
EXTENSION OF AN OLD PUMPSTATION
2021
URBAN TRANSFORMATION
2020
WATERFRONT HOTEL
2022
OFFICE BUILDING
2021
MONASTERY TRANSFORMATION
2019
SMALL HIKERS HOTEL
2020
↑
Back to Top